Sivusto ei tue käyttämääsi selainta. Suosittelemme selaimen päivittämistä uudempaan versioon.

KOSKENKURVI

Jänisjoella

Rakennus Ilves

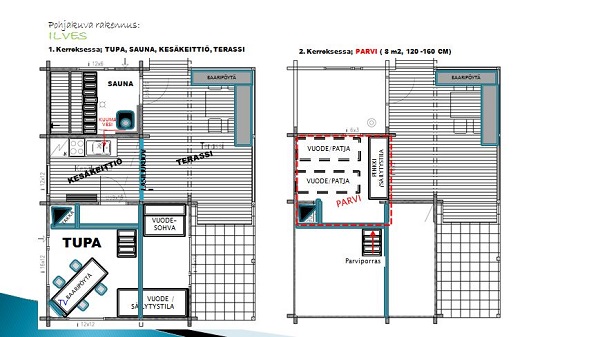
Ilves on päärakennus johon kuuluvat tupa, sauna, nukkumaparvi, lasiovella varustettu kesäkeittiö

sekä terassi. Suoraan terassilta johtaa portaat ja reitti 60 m päässä olevalle lähimmälle koskelle. 

Ilveksen varusteluun kuuluu mm. sähköt (aurinkosähkö 230V + automaatti aggregaatti), takka,

jääkaappi, TV, kahvinkeitin, imuri ja kaasuliesi. Petipaikkoja on 4 henkilölle.

Alueen tietoliikenneyhteydet, ainakin osalla verkko operaattoreista, on hyvät (3G).

 

Tupa 16,5 m2 + parvi 8 m2 + lasiovin varustettu kesäkeittiö 6 m2 + sauna 6 m2 sekä katon alle

sijoittuvat kuistialueet 15 m2 + 8 m2 muodostavat toimivan kokonaisuuden majoittumiseen ja oleskeluun.


Koskenkurvi - Rakennus IlvesKoskenkurvi - Rakennus Ilves

Rakennus Majava

Majava ja sen aittatupa on laavun ohella keskeinen oleskelu ja puuhastelupaikka Koskenkurvissa.

Rakennukseen kuuluu nukkuma-aitta, kompostikäymälä, tekninen tila jossa sähköntuottamiseen

tarvittavaa tekniikkaa, sekä pariovilla varustettu aittatupa sekä terassi.

Majavan varusteluun kuuluu mm. sähköt, valaistus ja ruuan valmistamiseen muurikka-keittiövaunu ja hiiligrilli.

Majoittumistilaa nukkuma-aitassa on 4 petipaikkaa.

 

Aittatupa 14 m2, nukkuma-aitta 9,5 m2, tekninen tila 4,5 m2, WC 4 m2 sekä terassialueet 18 m2.


Koskenkurvi - Rakennus MajavaKoskenkurvi - Rakennus Majava

Kuvagalleria